1000万
注册资本
G-U(格屋)
品牌
产品详情


产品应用案例
完工时间:2023年
项目地区:北京朝阳区
行业分类:企业自建写字楼;室内运动场、保龄球场、体操馆;中大型停车场
采购单位:淘宝(中国)软件有限公司北京朝阳分公司
案例描述:总投资约68.9亿元,建筑面积达47万平米,相比阿里杭州的西溪园区多了18万平米。预计2024年建成。截至目前,阿里巴巴主核心业务已全部在京落地,覆盖科技、金融、电商、文娱、健康、物流、新消费等领域。
供应产品:幕墙多点锁
其他产品(23)
品牌:G-U(格屋)
应用于3个案例
品牌:G-U(格屋)
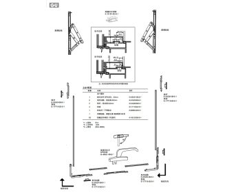
规格型号:
***
运用场景:
酒店、医院、学校、住宅
应用于3个案例
1
2
3
4
5



